Il progetto prevede la ristrutturazione completa di un prestigioso villaggio turistico, con un nuovo design pensato per offrire un’esperienza di soggiorno rinnovata e all’insegna del comfort. L’intervento riguarda le 341 camere destinate agli ospiti, ridisegnate con un’estetica moderna e funzionale, oltre agli spazi comuni e alle aree esterne, per garantire un’armonia tra architettura e paesaggio circostante.
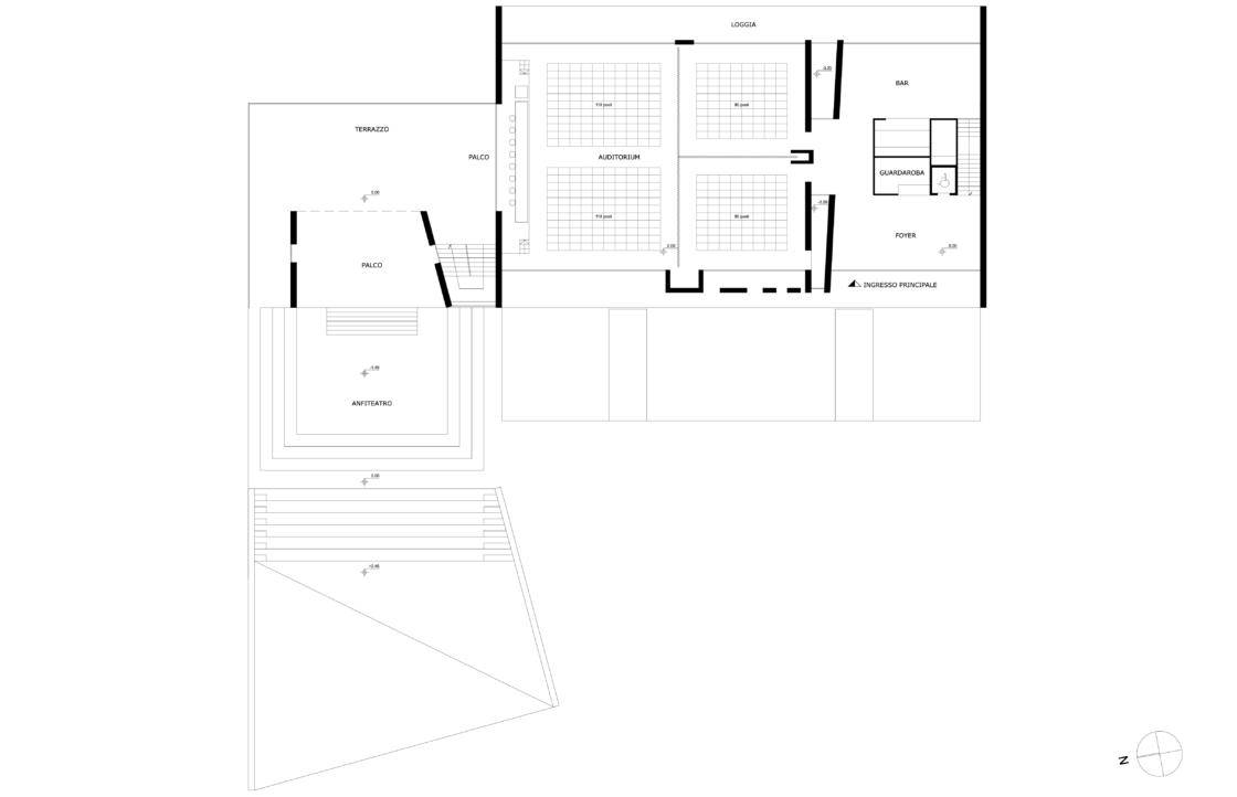
Un’importante parte del progetto è la riqualificazione della zona piscina, con un layout aggiornato per migliorare l’accessibilità e l’esperienza di relax. Inoltre, viene sviluppata la progettazione integrata di un nuovo auditorio, dotato di un teatro all’aperto, pensato per accogliere eventi e spettacoli in un ambiente suggestivo e immerso nella natura.
L’intero intervento è concepito per valorizzare il villaggio, migliorando l’estetica e la funzionalità delle strutture, con particolare attenzione al comfort degli ospiti e alla qualità degli spazi di aggregazione.