Torna a galleria progetti

Spazio FMG

2015
Milano (MI)
Commerciale
Realizzato

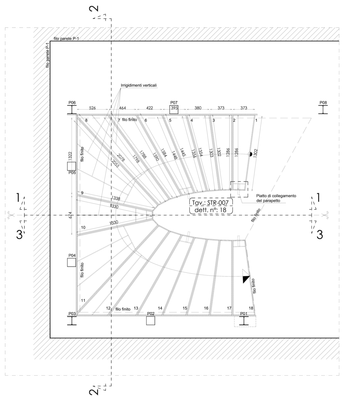
Ristrutturazione interna dello showroom SpazioFMG e dei locali al piano interrato con formazione di nuova scala di collegamento.

L’intervento comprende: 

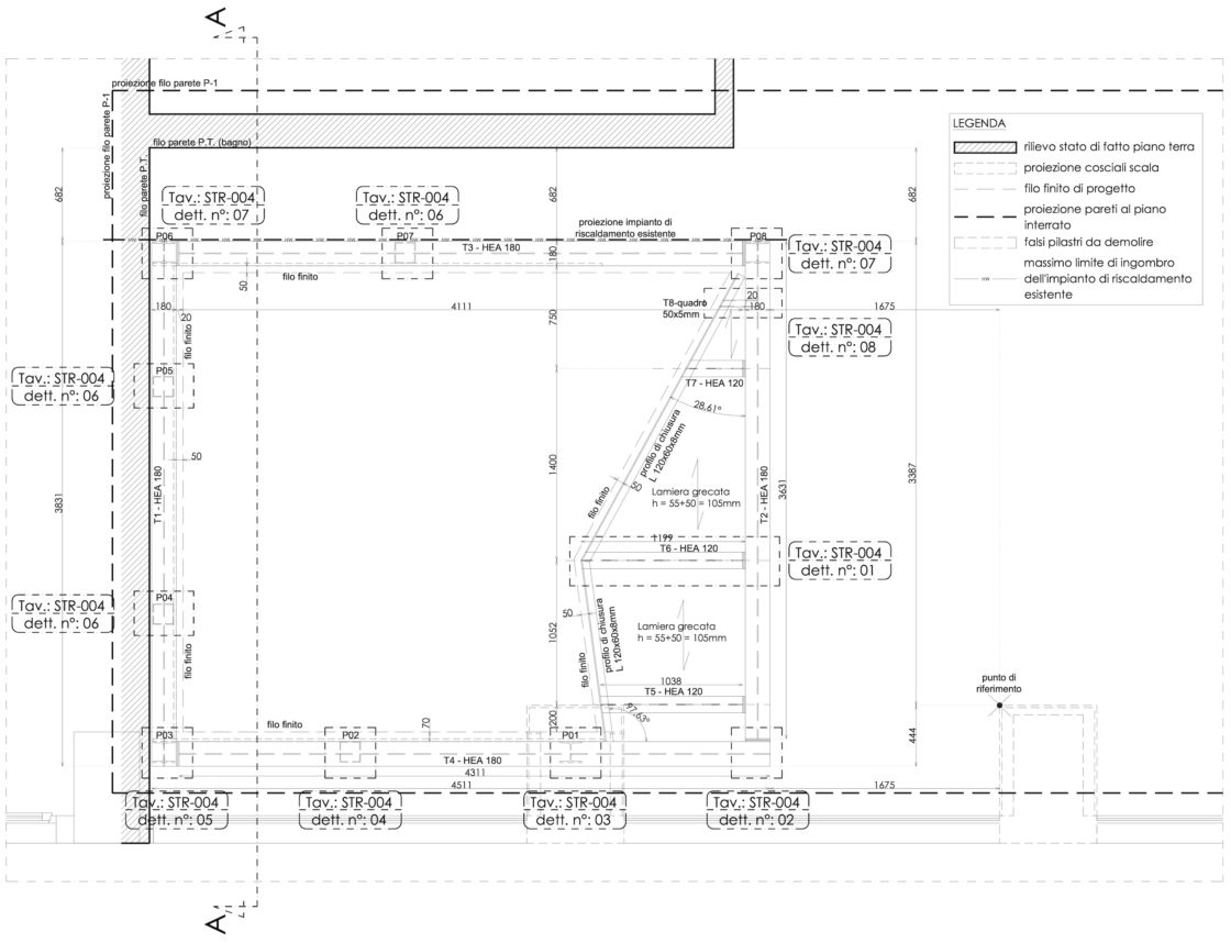
Demolizione di una parte del solaio in latero-cemento dim. 1,9×2,9m e una porzione di trave in calcestruzzo.

Demolizione totale dei muri divisori al piano di ingresso e della scala esistente di collegamento. 

Costruzione di nuovo solaio in corrispondenza dello sbarco di  arrivo della scala in demolizione.  

Inserimento di una struttura di rinforzo con due travi primaria e secondaria HEA180 e una colonna HEA140 a sostegno della trave in calcestruzzo parzialmente demolita. 

Inserimento di nuova scala metallica di collegamento tra il piano terra e piano interrato. 

Sostituzione di tutte le finiture interne con nuovi prodotti in corrispondenza della committenza.

Continua a leggere

Progetto: Arch. Simone Hybsch – HPDB

Periodo esecuzione: 07/2014 – 03/2015
Cliente: Divisione IRIS – FMG, Graniti Fiandre s.p.a.

Attività svolte:
Progettazione esecutiva architettonica
Progettazione strutturale

PROGETTI CORRELATI

Boutique Panerai

Europa / America / Asia

Officine Panerai

Neuchâtel (CH)

Villaggio Valtour

Pollina (PA)
Torna ai progetti