Torna a galleria progetti

Residenze Campo Calabro

2024
Campo Calabro (RC)
Residenziale
Progetto preliminare

Progetto preliminare per la costruzione di nuove unità immobiliari in un lotto edificabile nel Comune di Campo Calabro (RC). 

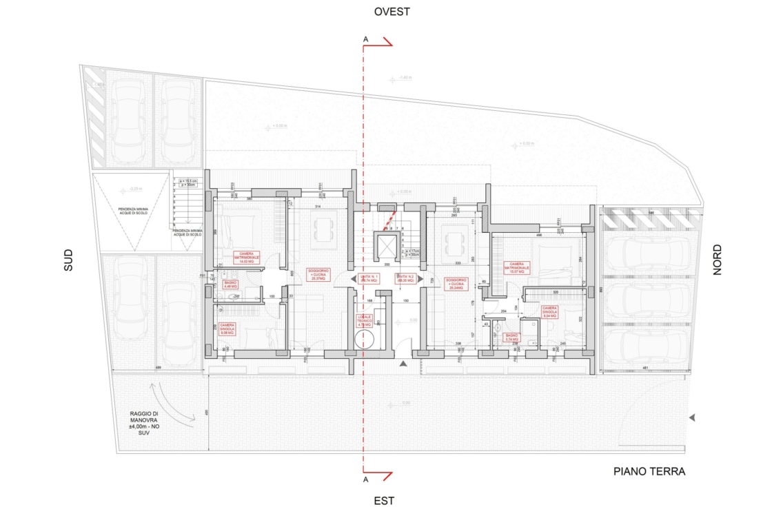
L’edificio si sviluppa su tre piani fuori terra e ospita 6 appartamenti di tagli identici, fatta eccezione per i due situati al piano terra, di dimensioni inferiori in quanto il piano ospita l’ingresso principale e quello secondario, accessibile dal cortile sul retro, oltre a un locale impianti, che su richiesta del cliente non è stato previsto in un eventuale piano interrato per contenere i costi di scavo e le opere connesse in fase di realizzazione. 

Pertanto, il piano terra, totalmente accessibile tramite un sistema di rampe sia dal fronte principale (ovest) che da quello secondario (est), ospita due appartamenti da 68 mq con soggiorno e cucina, una camera singola, una camera matrimoniale e un bagno completo.

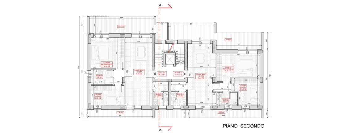
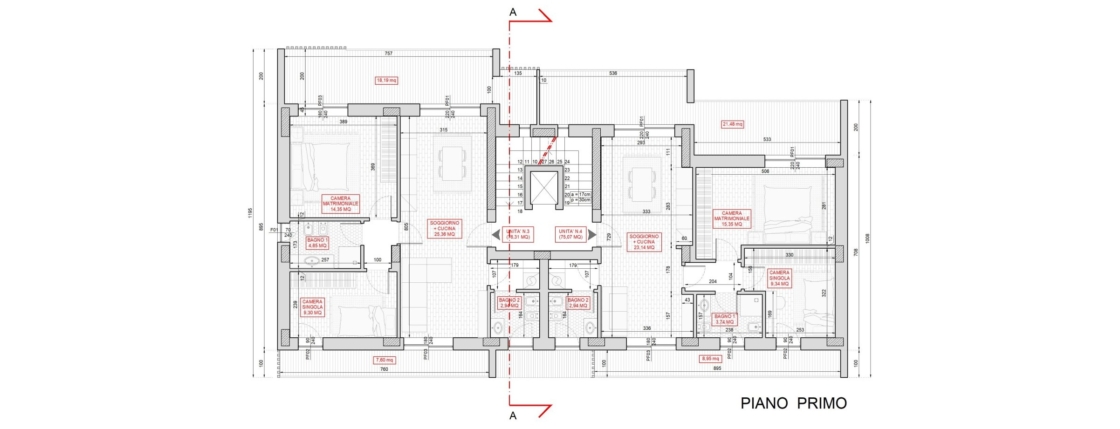
Ai piani primo e secondo, invece, si trovano due appartamenti da circa 75 mq nei quali, oltre ai locali di cui sopra, è stato ricavato un secondo bagno-lavanderia di servizio.

Il tetto piano è in parte praticabile e si raggiunge salendo l’ultima rampa di scale attraverso una finestra scorrevole automatica. Si prevede, inoltre, che la zona ovest possa accogliere pannelli fotovoltaici e che sia ispezionabile solo dagli addetti manutentori.

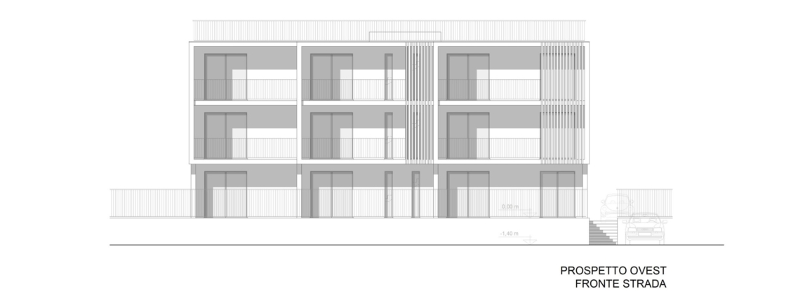
La composizione architettonica dei fronti è stata studiata in modo da sfruttare la vista sul lato ovest, in direzione del mare, attraverso logge che ospitano grandi vetrate e un sistema di oscuramento fisso a listelli in legno. Sul fronte est, invece, i balconi sono caratterizzati sia da schermature a listelli (lato sud) che da chiusure opache (lato nord). Il vano scala è inserito nella sagoma dell’edificio, in adiacenza con il fronte secondario, ed è illuminato da ampie finestre, sia in facciata che, appunto, in copertura.

L’immediato intorno è caratterizzato da pavimentazione di tipo filtrante ovvero prato sul lato ovest e macrodrain sul lato est carrabile e per le aree adibite a parcheggio.

Continua a leggere

Progetto: Shead s.r.l.

Periodo esecuzione: 02/2024 – 04/2024
Cliente: Privato

Attività svolte: Progettazione Architettonica Preliminare

PROGETTI CORRELATI

Residenze sul Garda

Vergiate (VA)

Villaggio Valtour

Pollina (PA)
Torna ai progetti