Realizzazione di 8 nuove unità abitative ecosostenibili sul contesto collinare lacustre del Lago di Garda.
Per la costruzione di queste nuove residenze si è previsto la demolizione della villa esistente per la riutilizzazione della sua volumetria secondo il Piano Casa della regione del Veneto ridistribuita in maniera tale da incidere il meno possibile sull’ambiente circostante.
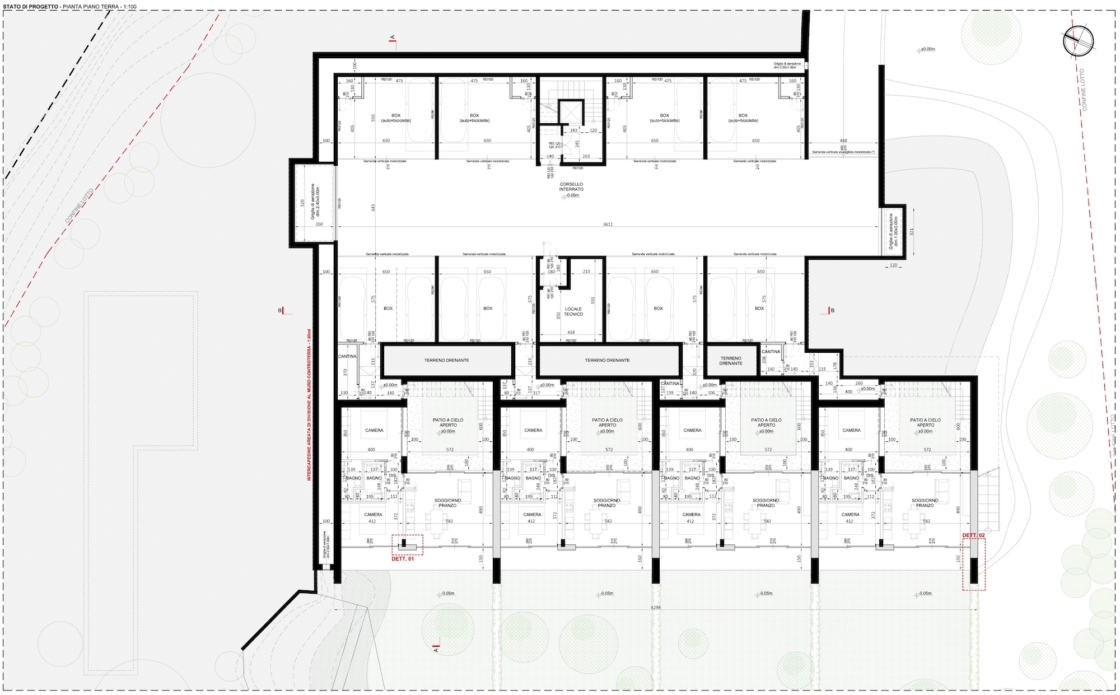
Si prevedono due tipologie di unità abitative: tipologia “Panorama” (60mq) e tipologia “Patio” (65mq) connesse tra loro mediante un volume interrato ospitante n°8 box doppi per auto e biciclette, i locali cantina ed i locali tecnici.
Tipologia “Panorama”:
Posizionate sulla sommità del complesso residenziale con una amplia vista verso il lago. Le unità vengono collegate con gli spazi accessori tramite il volume centrale contenente un corpo scala e ascensore.
Tipologia “Patio”:
Posizionate sulla parte inferiore del complesso e sull’asse nord-sud favorendo l’esposizione degli ambiente verso il lago. Le unità sono dotate di un patio per garantire una miglior aeroilluminazione degli spazi interni e miglior sfruttamento dei raggi solari durante l’inverno.